日野市新町5丁目の倉庫

1,712.7万円 (0.66万円/坪) 管理/共益費 -

東京都日野市新町5丁目

八高線「小宮」駅徒歩13分

中央線「日野」駅徒歩27分

価格
1,712.7万円(0.66万円/坪) 管理/共益費 -
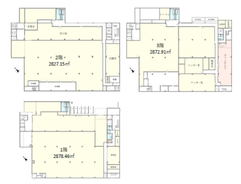
建物面積
2594.99坪(8578.52㎡)
所在地
東京都日野市新町5丁目
築年
1989年10月(築36年)
駐車
交通

八高線小宮」駅 徒歩13分

中央線日野」駅 徒歩27分

日野市新町5丁目の倉庫の基本情報

物件名
日野市新町5丁目の倉庫
価格
1,712.7万円(0.66万円/坪)
管理/共益費
-
築年月
1989年10月(築36年)
所在地
東京都日野市新町5丁目
交通

八高線小宮」駅 徒歩13分

中央線日野」駅 徒歩27分

日野市新町5丁目の倉庫の詳細情報

設備条件
駐車場/月額
有/0円
取引態様
仲介

日野市新町5丁目の倉庫で募集中の物件

  1. 3階建

    2594.99坪 (8578.52㎡)

    1,712.7万円(0.66万円/坪)

よく見られている物件

  1. 足立区六木1丁目

    - (462.80㎡)

    69万円

  2. 江戸川区松江1丁目

    - (8617.97㎡)

    1,749万円

  3. 野田市船形

    - (664.00㎡)

    121万円

  4. 足立区入谷8丁目

    - (2645.82㎡)

    528万円

日野市新町5丁目の倉庫

お気軽にお問い合わせください

無料お問い合わせ

株式会社ステージ

06-6356-4555

9:30~19:00

(休:日曜、祝日)