江東区新木場4丁目の倉庫

4億5,500万円

東京都江東区新木場4丁目

京葉線「新木場」駅徒歩22分

価格
4億5,500万円
建物面積
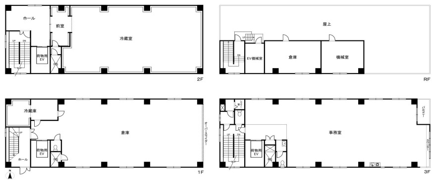
183.17坪(605.54㎡)
所在地
東京都江東区新木場4丁目
築年
1989年10月(築36年)
駐車
-
交通

京葉線新木場」駅 徒歩22分

江東区新木場4丁目の倉庫の基本情報

物件名
江東区新木場4丁目の倉庫
価格
4億5,500万円
築年月
1989年10月(築36年)
総戸数
-
所在地
東京都江東区新木場4丁目
交通

京葉線新木場」駅 徒歩22分

江東区新木場4丁目の倉庫の詳細情報

設備条件
設備(その他)
    -
駐車場/月額
-/-
土地権利
所有権
国土法届出
不要
用途地域
工業専用
戸数
- / -
管理形態
-
管理員の勤務形態
-
管理会社
-
取引態様
仲介
引渡し
相談

江東区新木場4丁目の倉庫で募集中の物件

  1. 4階建

    183.17坪 (605.54㎡)

    45,500万円(248.4万円/坪)

よく見られている物件

  1. 草加市長栄2丁目

    - (236.76㎡)

    5,000万円

  2. 足立区神明2丁目

    - (912.46㎡)

    16,500万円

  3. 文京区大塚3丁目

    - (201.87㎡)

    12,800万円

  4. 江戸川区西小岩1丁目

    - (164.93㎡)

    9,800万円

江東区新木場4丁目の倉庫

お気軽にお問い合わせください

無料お問い合わせ

株式会社ステージ

06-6356-4555

9:30~19:00

(休:日曜、祝日)