川越市霞ケ関東1丁目のビル

9,500万円

埼玉県川越市霞ケ関東1丁目

東武東上線「霞ヶ関」駅徒歩1分

川越線「的場」駅徒歩15分

川越線「西川越」駅徒歩28分

価格
9,500万円
間取り/面積
-/339.94㎡
所在地
埼玉県川越市霞ケ関東1丁目
築年
2013年12月(築12年)
駐車
-
交通

東武東上線霞ヶ関」駅 徒歩1分

川越線的場」駅 徒歩15分

川越線西川越」駅 徒歩28分

川越市霞ケ関東1丁目のビルの基本情報

物件名
川越市霞ケ関東1丁目のビル
価格
9,500万円
建物面積
339.94㎡
築年月
2013年12月(築12年)
総戸数
-
所在地
埼玉県川越市霞ケ関東1丁目
交通

東武東上線霞ヶ関」駅 徒歩1分

川越線的場」駅 徒歩15分

川越線西川越」駅 徒歩28分

川越市霞ケ関東1丁目のビルの詳細情報

設備条件
設備(その他)
    -
駐車場/月額
-/-
土地権利
所有権
国土法届出
不要
用途地域
商業
戸数
- / -
管理形態
-
管理員の勤務形態
-
管理会社
-
取引態様
仲介
引渡し
相談

川越市霞ケ関東1丁目のビルで募集中の物件

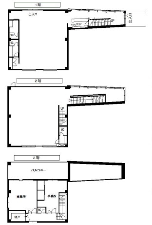
  1. 3階建

    102.83坪 (339.94㎡)

    9,500万円(92.39万円/坪)

よく見られている物件

  1. 文京区大塚3丁目

    - (201.87㎡)

    12,800万円

  2. 江戸川区西小岩1丁目

    - (164.93㎡)

    9,800万円

  3. 草加市弁天2丁目

    - (473.39㎡)

    7,200万円

  4. 足立区綾瀬6丁目

    - (1515.56㎡)

    8億円

川越市霞ケ関東1丁目のビル

お気軽にお問い合わせください

無料お問い合わせ

株式会社ステージ

06-6356-4555

9:30~19:00

(休:日曜、祝日)