豊島区西池袋3丁目の店舗事務所

124.41万円 (5.46万円/坪) 管理/共益費 414,700円

東京都豊島区西池袋3丁目

山手線「池袋」駅徒歩1分

有楽町線「要町」駅徒歩12分

山手線「目白」駅徒歩16分

価格
124.41万円(5.46万円/坪) 管理/共益費 414,700円
面積
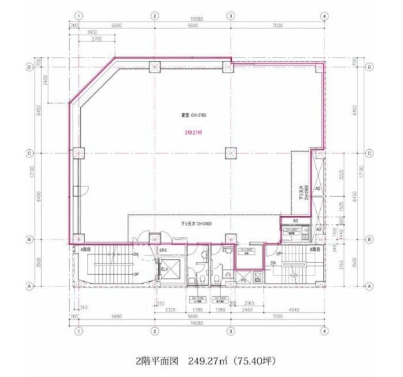
22.80坪(75.40㎡)
所在地
東京都豊島区西池袋3丁目
築年
1971年1月(築54年)
駐車
空無
交通

山手線池袋」駅 徒歩1分

有楽町線要町」駅 徒歩12分

山手線目白」駅 徒歩16分

豊島区西池袋3丁目の店舗事務所の基本情報

物件名
豊島区西池袋3丁目の店舗事務所
価格
124.41万円(5.46万円/坪)
管理/共益費
414,700円
築年月
1971年1月(築54年)
所在地
東京都豊島区西池袋3丁目
交通

山手線池袋」駅 徒歩1分

有楽町線要町」駅 徒歩12分

山手線目白」駅 徒歩16分

豊島区西池袋3丁目の店舗事務所の詳細情報

設備条件
  • 好立地
駐車場/月額
空無/55,000円 (税込)
取引態様
仲介

豊島区西池袋3丁目の店舗事務所で募集中の物件

  1. 2階部分

    22.80坪 (75.40㎡)

    124.41万円(5.46万円/坪)

豊島区西池袋3丁目の店舗事務所

お気軽にお問い合わせください

無料お問い合わせ

株式会社ステージ

06-6356-4555

9:30~19:00

(休:日曜、祝日)