足立区西新井7丁目の倉庫

297万円 (0.52万円/坪) 管理/共益費 -

東京都足立区西新井7丁目

日暮里舎人ライナー「西新井大師西」駅徒歩7分

日暮里舎人ライナー「江北」駅徒歩9分

東武大師線「大師前」駅徒歩12分

価格
297万円(0.52万円/坪) 管理/共益費 -
建物面積
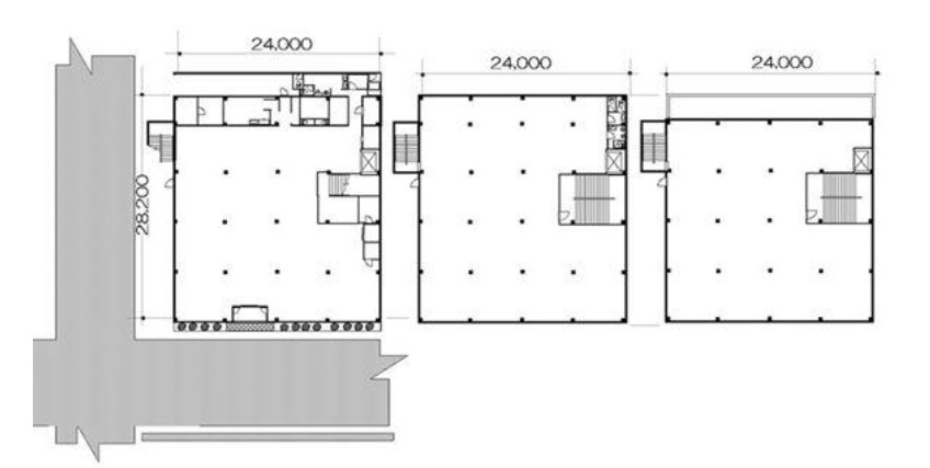
567.51坪(1876.09㎡)
所在地
東京都足立区西新井7丁目
築年
1978年10月(築47年)
駐車
有(10台)
交通

日暮里舎人ライナー西新井大師西」駅 徒歩7分

日暮里舎人ライナー江北」駅 徒歩9分

東武大師線大師前」駅 徒歩12分

足立区西新井7丁目の倉庫の基本情報

物件名
足立区西新井7丁目の倉庫
価格
297万円(0.52万円/坪)
管理/共益費
-
築年月
1978年10月(築47年)
所在地
東京都足立区西新井7丁目
交通

日暮里舎人ライナー西新井大師西」駅 徒歩7分

日暮里舎人ライナー江北」駅 徒歩9分

東武大師線大師前」駅 徒歩12分

足立区西新井7丁目の倉庫の詳細情報

設備条件
駐車場/月額
有(10台)/0円
用途地域
準工業
取引態様
仲介

足立区西新井7丁目の倉庫で募集中の物件

  1. 3階建

    567.51坪 (1876.09㎡)

    297万円(0.52万円/坪)

足立区西新井7丁目の倉庫

お気軽にお問い合わせください

無料お問い合わせ

株式会社ステージ

06-6356-4555

9:30~19:00

(休:日曜、祝日)