三郷市鷹野4丁目の工場

3億9,000万円

埼玉県三郷市鷹野4丁目

つくばエクスプレス「三郷中央」駅徒歩37分

常磐線「松戸」駅徒歩44分

つくばエクスプレス「八潮」駅徒歩45分

価格
3億9,000万円
建物面積
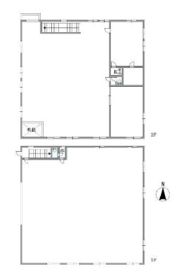
234.73坪(775.99㎡)
所在地
埼玉県三郷市鷹野4丁目
築年
2016年10月(築9年)
駐車
-
交通

つくばエクスプレス三郷中央」駅 徒歩37分

常磐線松戸」駅 徒歩44分

つくばエクスプレス八潮」駅 徒歩45分

三郷市鷹野4丁目の工場の基本情報

物件名
三郷市鷹野4丁目の工場
価格
3億9,000万円
築年月
2016年10月(築9年)
総戸数
-
所在地
埼玉県三郷市鷹野4丁目
交通

つくばエクスプレス三郷中央」駅 徒歩37分

常磐線松戸」駅 徒歩44分

つくばエクスプレス八潮」駅 徒歩45分

三郷市鷹野4丁目の工場の詳細情報

設備条件
設備(その他)
    -
駐車場/月額
-/-
土地権利
所有権
国土法届出
不要
用途地域
-
戸数
- / -
管理形態
-
管理員の勤務形態
-
管理会社
-
取引態様
仲介
引渡し
2025年10月上旬

三郷市鷹野4丁目の工場で募集中の物件

  1. 2階建

    234.73坪 (775.99㎡)

    39,000万円(166.15万円/坪)

三郷市鷹野4丁目の工場

お気軽にお問い合わせください

無料お問い合わせ

株式会社ステージ

06-6356-4555

9:30~19:00

(休:日曜、祝日)