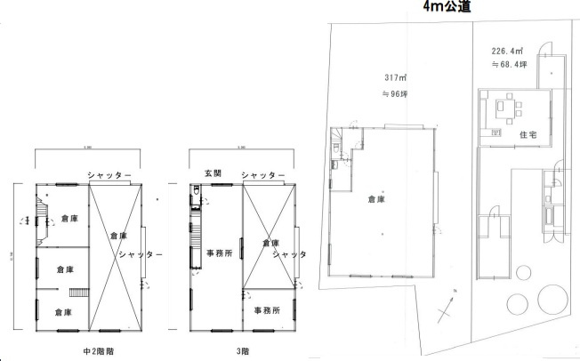
三郷市彦糸1丁目の倉庫

8,500万円

埼玉県三郷市彦糸1丁目

武蔵野線「吉川美南」駅徒歩32分

価格
8,500万円
建物面積
74.59坪(246.59㎡)
所在地
埼玉県三郷市彦糸1丁目
築年
1999年12月(築25年)
駐車
-
交通

武蔵野線吉川美南」駅 徒歩32分

三郷市彦糸1丁目の倉庫の基本情報

物件名
三郷市彦糸1丁目の倉庫
価格
8,500万円
築年月
1999年12月(築25年)
総戸数
-
所在地
埼玉県三郷市彦糸1丁目
交通

武蔵野線吉川美南」駅 徒歩32分

三郷市彦糸1丁目の倉庫の詳細情報

設備条件
設備(その他)
    -
駐車場/月額
-/-
土地権利
所有権
国土法届出
不要
用途地域
第一種低層住居専用
戸数
- / -
管理形態
-
管理員の勤務形態
-
管理会社
-
取引態様
仲介
引渡し
相談

三郷市彦糸1丁目の倉庫で募集中の物件

  1. 2棟有り

    74.59坪 (246.59㎡)

    8,500万円(113.96万円/坪)

三郷市彦糸1丁目の倉庫

お気軽にお問い合わせください

無料お問い合わせ

株式会社ステージ

06-6356-4555

9:30~19:00

(休:日曜、祝日)