/
【外観】
- 価格
- 8,500万円
- 間取り
- -
- 土地面積
- 544.34㎡(164.66坪)
- 構造
- 木造
- 所在階 / 階建て
- 1-3階 / 3階建
- 専有面積
- 246.59㎡(74.59坪)
- 用途地域
- 第一種低層住居専用
- 築年月
- 1999年12月(築26年)
- 価格
- 8,500万円
- 修繕積立金
- -
- 建物面積 /
専有面積 - 246.59㎡(74.59坪)
- 土地面積
- 544.34㎡(164.66坪)
- バルコニー面積
- -
- その他面積
- -
-
- - 坪単価
- 113.96万円
- 間取り
- -
- 向き
- -
- 所在階 / 階建て
- 1-3階 / 3階建
- 築年月
- 1999年12月(築26年)
- 建物構造
- 木造
- 都市計画
- 市街化区域
- 用途地域
- 第一種低層住居専用
- 地目 / 地勢
- 宅地 / -
- 建ぺい率 /
容積率 - 60% / 100%
- 駐輪場
- -
- 私道負担面積
- -
- 総戸数
- -
- 土地権利
- 所有権
- 土地
(敷金 / 保証金) - - / -
- 国土法届出要否
- 不要
- 現況
- 空家
- 接道状況
- -(北西 公道 4.0m 間口 21.0m)
- 取引態様
- 仲介
- 引渡
- 相談
- 管理員の
勤務形態 - -
- 管理形態
- -
- 管理会社 /
管理組合有無 - - / -
- その他
法令上の制限 - -
- 取引条件の
有効期限 - 2025年12月25日
- 設備条件
-
- 設備(その他)
-
-
-
- 物件番号
- 93573146
- 管理コード
- PU4.4-222-0-3-4
- 情報更新日
- 2025年12月11日
- 次回更新予定日
- 2025年12月25日
- 取扱会社
-
- 株式会社ステージ
- 大阪府大阪市北区天満2丁目8-17 天満橋パークビル 601号
- TEL:06-6356-4555
- 国土交通大臣 (1) 第10705号
- 公益社団法人全日本不動産協会
公益社団法人不動産保証協会
不動産公正取引協議会連合会
- 備考
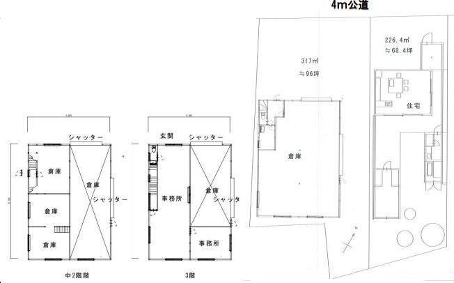
- ※3階建倉庫兼事務所:1階(115.67 ㎡)2階(24.75 ㎡)3階(74.36 ㎡)■構造/木造亜鉛メッキ鋼板葺3階建 ■築年月/平成11年12月築
※平屋建戸建:31.81 ㎡ ■構造/木造 ■間取り/1LDK ■築年月/平成13年9月築
※接道/北西側公道幅員約 4m・約 21m接道
※設備/公営水道・本下水・プロパン - 月々の支払額
- 9.6円
- 購入希望物件価格
-
万円
- 頭金
-
万円
- 金利
-
%
- 返済額(ボーナス1回分)
-
万円
- 返済期間
-
年
セールスポイント
3階建倉庫兼事務所 延べ約64.98坪+平屋建戸建 約9.62坪 ◇敷地面積約164坪 ◇第1種低層住居専用地域
担当者のコメント
■木造亜鉛メッキ鋼板葺3階建倉庫事務所 ■土地面積544.34㎡ ■建物(倉庫)1階115.67㎡ 2階24.75㎡ 3階74.36㎡ ■建物(平屋)31.81㎡
基本情報
設備条件
その他
支払いシミュレーション
※ボーナスは自動で年2回分で計算されます。
三郷市彦糸1丁目の倉庫
8,500万円
-
-(246.59㎡)