墨田区立川2丁目の店舗事務所 1階

39.93万円(1.86万円/坪)

管理 / 共益費 -

東京都墨田区立川2丁目

都営大江戸線「森下」駅徒歩7分

都営新宿線「菊川」駅徒歩9分

半蔵門線「清澄白河」駅徒歩16分

賃料 / 坪単価
39.93万円 / 1.86万円
敷金(保証金)
3ヶ月(-)
所在地
東京都墨田区立川2丁目
交通

都営大江戸線森下」駅 徒歩7分

都営新宿線菊川」駅 徒歩9分

半蔵門線清澄白河」駅 徒歩16分

管理 / 共益費
-
礼金
1ヶ月
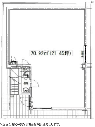
建物面積
21.45坪(70.92㎡)
築年月
2023年11月(築2年)

セールスポイント

新築 1階貸店舗事務所 約21.45坪 ◇軽飲食相談可(重飲食不可) ◇スケルトン ◇天井高3300㎜

担当者のコメント

新築 1階貸店舗事務所 約21.45坪 ◇軽飲食相談可(重飲食不可) ◇スケルトン ◇天井高3300㎜

基本情報

保証金
-
敷引 / 償却
2ヶ月 / -
建物面積
70.92㎡
所在階 / 階建て
1階 / 3階建
建物構造
鉄筋コンクリート
築年月
2023年11月(築2年)
種別
店舗事務所
契約期間
定期借家 2年
保証会社 / 料金
必加入 / -
貸主指定家賃保証会社
駐車場
無 -
現況
完成済み
入居可能時期
即時
その他条件
貸主指定家賃保証:39万9,300円
取引条件の
有効期限
2025年11月27日

設備条件

設備条件
  • 飲食店可 / サービスオフィス / スクール向け / クリニック向け / スケルトン渡し / 重飲食不可 / 軽飲食可 / 路面店 / 美容室向け / 物販向け / エステサロン向け / カフェ向け / 歯科向け / スタジオ向け / ドラッグストア向け / 病院・クリニック向け / マッサージ・整体院向け

その他

賃貸区分
定期借家権
保険会社 / 料金
有  火災保険  / -
取引態様
仲介
物件番号
85819240
管理コード
222-60-123-4
情報更新日
2025年11月13日
次回更新予定日
2025年11月27日
取扱会社
  • 株式会社ステージ
  • 大阪府大阪市北区天満2丁目8-17 天満橋パークビル 601号
  • TEL:06-6356-4555
  • 国土交通大臣 (1) 第10705号
  • 公益社団法人全日本不動産協会
    公益社団法人不動産保証協会
    不動産公正取引協議会連合会
備考
坪単価約18615円、契約期間:再契約相談可、看板掲出要相談、重飲食不可、軽飲食相談、トイレ(賃室内設置済み)、電気、上水道、下現状渡し。水道、トイレ専用、温水洗浄便座、現状渡し。

墨田区立川2丁目の店舗事務所

墨田区立川2丁目の店舗事務所

39.93万円

-

21.45坪(70.92㎡)

お気軽にお問い合わせください

無料お問い合わせ

株式会社ステージ

06-6356-4555

9:30~19:00

(休:日曜、祝日)