八千代市高津の店付住宅

9,380万円

千葉県八千代市高津

東葉高速鉄道「八千代緑が丘」駅徒歩20分

東葉高速鉄道「船橋日大前」駅徒歩30分

価格
9,380万円
間取り/面積
-/546.64㎡
所在地
千葉県八千代市高津
築年
1975年1月(築51年)
駐車
-
交通

東葉高速鉄道八千代緑が丘」駅 徒歩20分

東葉高速鉄道船橋日大前」駅 徒歩30分

八千代市高津の店付住宅の基本情報

物件名
八千代市高津の店付住宅
価格
9,380万円
建物面積
546.64㎡
築年月
1975年1月(築51年)
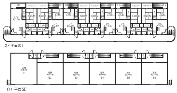
総戸数
6戸(事務所:6戸)
所在地
千葉県八千代市高津
交通

東葉高速鉄道八千代緑が丘」駅 徒歩20分

東葉高速鉄道船橋日大前」駅 徒歩30分

八千代市高津の店付住宅の詳細情報

設備条件
設備(その他)
    -
駐車場/月額
-/-
土地権利
所有権
国土法届出
不要
用途地域
第一種低層住居専用
戸数
6戸(事務所:6戸) / -
管理形態
-
管理員の勤務形態
-
管理会社
-
取引態様
仲介
引渡し
即時

八千代市高津の店付住宅で募集中の物件

  1. 2階建

    165.35坪 (546.64㎡)

    9,380万円(56.73万円/坪)

よく見られている物件

  1. 台東区鳥越1丁目

    - (47.91㎡)

    4,980万円

  2. 渋谷区幡ヶ谷3丁目

    - (124.07㎡)

    8,980万円

  3. 足立区千住東1丁目

    - (108.47㎡)

    8,480万円

  4. 世田谷区成城2丁目

    - (119.45㎡)

    1980万円

八千代市高津の店付住宅

お気軽にお問い合わせください

無料お問い合わせ

株式会社ステージ

06-6356-4555

9:30~19:00

(休:日曜、祝日)